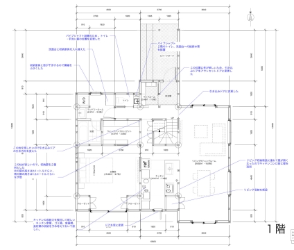
リノベーション案床面積:43坪(既存の広さを活用)耐震等級3、断熱等級6、HEAT20 G2グレードを実現します...
1月30日に市の耐震診断員より耐震診断の結果報告がありました。結果報告書によるとお客様の家の判定値は0.03...
昨日はリノベーション案の省エネ計算をしました。省エネ計算で確認したのは外皮性能(断熱性能)と一次エネ...
リノベ案と建替案それぞれの省エネ性能を計算してみました。まずはリノベ案です。今年も国交省、経産省、環...
お客様に提出するプランと見積もり、資金計画書は既に出来上がってます。今は市の耐震診断の結果待ちです。...
お客様が11月27日に申し込まれた一宮市の無料耐震診断が昨日(12/18)実施されました。私も良い機会なの...
お客様の家は昭和52年(1977年)の建築でした。今から48年前です。昭和56年5月31日より前に建てら...
私は実のところサンルームの使い方がイメージできなかったので、リノベ案にはデッキとテラス屋根を提案して...
お客様はリノベーションと平屋案の2つを検討されてます。先のリノベーション案の変更案とともに、平屋案も...
リノベーションと建て替えの初回提案をして約1ヶ月が経ちました。お客様は当初、リノベーション案により興...