木の家Blog

リノベーション2回目の提案設計

2025-11-21 09:45:36
2025-11-21 17:25:52
目次

リノベーションと建て替えの初回提案をして約1ヶ月が経ちました。
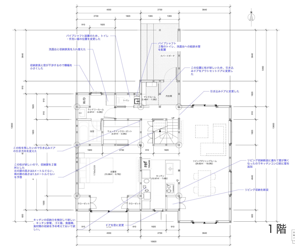
お客様は当初、リノベーション案により興味をお持ちでした。理由は家の大きさです。建て替えた場合の床面積が30坪に対して、リノベーションの場合は元の家の床面積が43坪なので減築しない限り43坪とゆとりある間取りになります。リビングや寝室の大きさはどちらも同じなので、リノベ案が広い部分は主に水回りと収納に関するところでした。

ですが、初回案に対してお客様からのご要望は「リビングをもっと広く」ということでした。そこで収納室を一室減らし、そこをキッチンに充てました。

これでLDK合わせて25.6帖になります。広さも高さもある、誰もが羨むゆとりあるリビング空間になります。

下のリンクから平面図、パースをご覧いただけます。https://www.kinoie.jp/blog/251121.html

この記事を書いた人

tsuzuki

https://www.kinoie.jp