木の家Blog

平屋案の変更希望案と弊社からの対案

2025-11-26 09:32:48
2025-11-27 15:33:59
目次

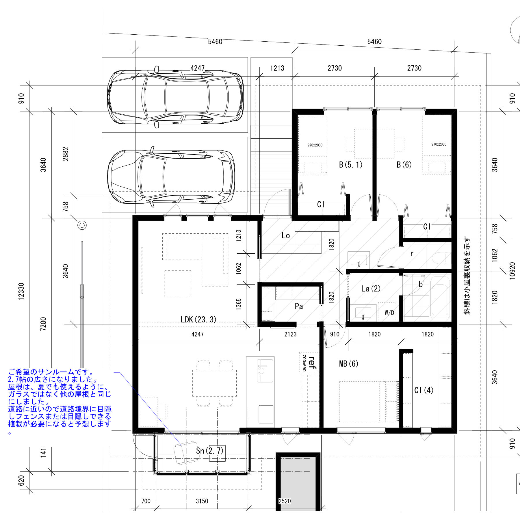
お客様はリノベーションと平屋案の2つを検討されてます。先のリノベーション案の変更案とともに、平屋案も変更の希望をいただきました。主な希望は
1、主寝室を8帖から6帖に小さくして、その分をリビングを拡大する。
2、ランドリールームにあった収納を無くし、こども室それぞれにクローゼットを追加する。
3、2帖程度のサンルームを南西に追加する<これは奥様の希望
でした。そのご希望に対する返答案平面図はこれです。


室内外パースは下記リンク先でご覧いただけます。
https://www.kinoie.jp/blog/251126.html

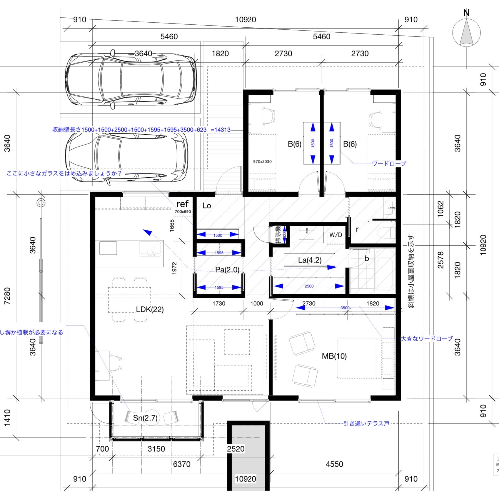
また、返答案とともに弊社から”おまけ案”を作ることがあります。
お客様に「こんな考え方もあるよ」と発想の転換を促すことが多いです。
おまけ案の平面図はこちら


1、主寝室のウォークインクローゼットをやめて部屋を広くした
2、キッチンを北西に配置した
3、パントリーからランドリーまで横移動できる動線を作った
4、トイレと廊下間のドアを二つにした(音対策)
下のリンク先はおまけ案の内外パースです
https://www.kinoie.jp/blog/251127.html

この記事を書いた人

tsuzuki

https://www.kinoie.jp