木の家Blog

収納力の比較検討は収納する壁の長さで、ただし床に置くモノは床を用意すること

2025-12-12 16:20:44
2025-12-12 17:58:54
目次

小さな家を設計する時にありがちなのが収納がまったく足りない家が出来上がってしまうことです。建築費を抑えるために床面積を小さくすると収納スペースが無くなりがちです。

何故かと言えば、リビングやキッチン、寝室など必要な広さはある程度決まってます。居室に必要な広さを割り当てつつ全体の床面積を下げるには廊下や収納室を無くすか少なくする手法が取られます。

その結果、収納が足りない家ができあがります。そうならないためには、設計の初期段階からどこにどの程度の収納力を確保するのか意識しておきたいものです。

ところで収納には、棚板にしろ造り付け家具にしても取り付ける壁が必要です。ということは家の収納力は収納に充てられる壁の量によって決まります。窓や出入り口が多い6畳の部屋よりも、出入り口1ヶ所のみの4畳の部屋の方が壁が多くて収納力が大きかったりします。

どの程度の壁の長さが必要か、私には初期段階で意識する数字があります。
A、家の延床面積100㎡ あたり13m以上、できれば15m程度の収納壁の長さ。
B、居住人数ひとりあたり3m以上、できれば5メートル以上の収納壁の長さ。
このふたつをクリアするようにします。

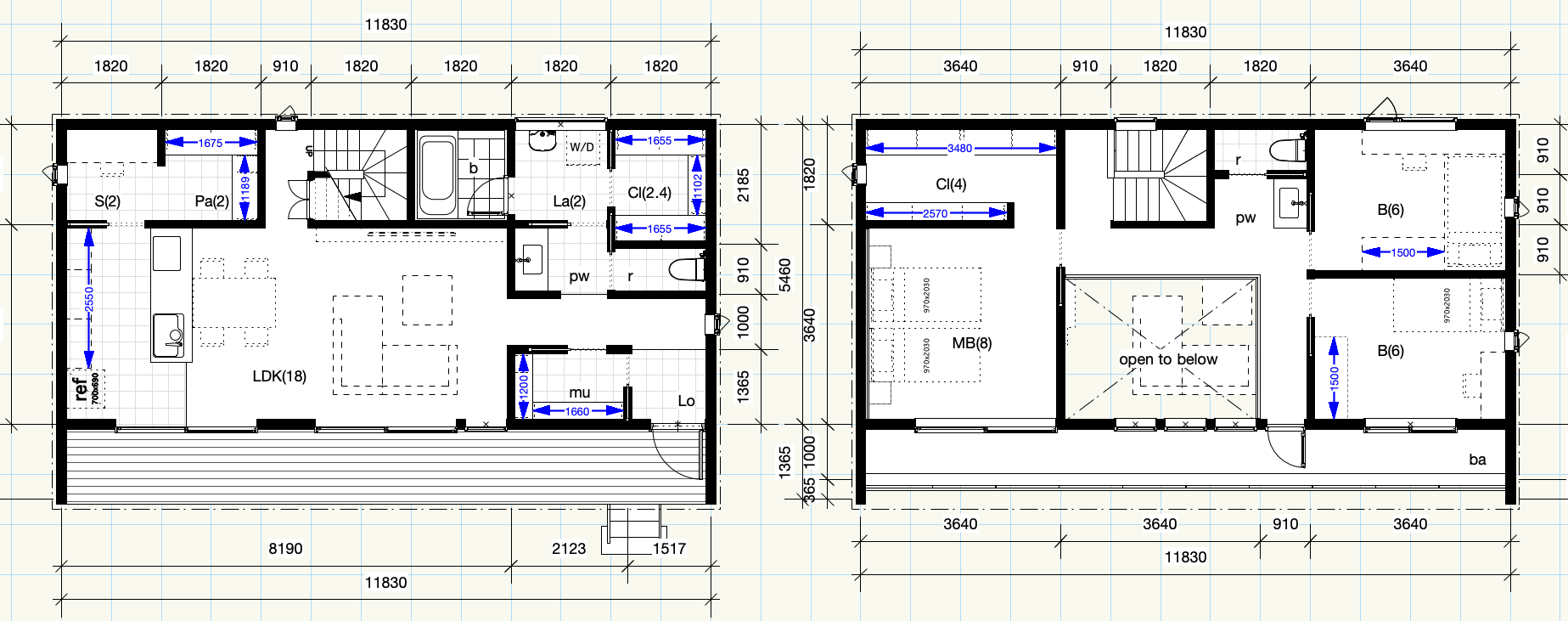
例えばこの間取りの場合は、

玄関収納として土間収納室内に延べ2.86メートル、キッチン収納としてキッチン背面キャビネットとパントリーに合わせて5.41メートル、水まわりの収納にリネン室内に延べ4.41メートル、そして寝室収納としてウォークインクローゼットとこども室のワードローブ(造り付け家具)で9.05メートルあります。

整理すると、
A、床面積100平方メートルあたりの収納壁延べ長さは18.23メートル
B、4人が住むとして、ひとりあたりの収納壁延べ長さは5.43メートルになります。
こんな感じで初期設計を済ませておけば後から悩む必要は無くなります。

ただしひとつだけ加えるならば、床に置くモノの収納には壁ではなく、床が必要ということを考えておいてください。
例えば、ベビーカーや三輪車、ゴルフセットなど大型の遊具類です。これら床に置くモノを収納するには壁ではなくウォークインできる収納室を考えておく必要があります。

このモデルプランはこちらからご覧いただけます。
https://www.kinoie.jp/planbook/planbook/C2/C2_11925c.html

この記事を書いた人

tsuzuki

https://www.kinoie.jp