木の家Blog

リノベか?建替か?その3

2025-10-28 09:40:27
2025-11-21 08:35:21
目次

親からもらった家をどのように有効活用するか?自分たちが住むとして親の家は間取り、設備が古すぎてそのままでは使えない。外観ももう少し小綺麗にしたい。という方がほとんどでしょう。
そこでリノベーションを考えるのですが、ひとくちにリノベーションと言ってもいろいろあります。簡単にお風呂、キッチン、トイレを新しいものに替えて、外観はペンキを塗り替える程度であれば数百万から掛かっても1000万円まででしょう。この場合は間取りや内装、そして家の外観はそのままです。
それじゃあちょっと嫌だな、となれば間取りを現代の使いやすいものに替えて、内装もそれに合わせて一新することになります。今までの例から1000万円から2000万円になると予想します。
加えて耐震補強となれば、親の家を壊して新しく建て替えたほうが安いのではとなる訳です。今回もリノベ、建て替えを同時に検討することになりました。

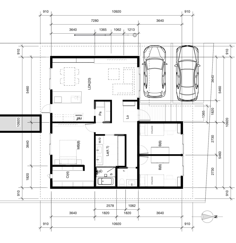
そこで今回は平屋に建て替える提案プランです。まだ見積もりをしてないので間取りと内外装のパース程度です。

お客様には、リノベーション、2階建建替、平屋建替の3つの案の基本図面と見積もりを提出します。さて、どうなるかはちょっと先のご報告になります。お楽しみに!
木の家ホームページはこちらから

この記事を書いた人

tsuzuki

https://www.kinoie.jp